EPSM, Montherod
Lausanne Jardins 2024
Ecole primaire, Lalden
Institut St. Germain, Delémont - 6ème
Crèche, Prangins
Ecole primaire, Matran - 5ème
Collège Principal, Pully
Ecole, Neirivue
          
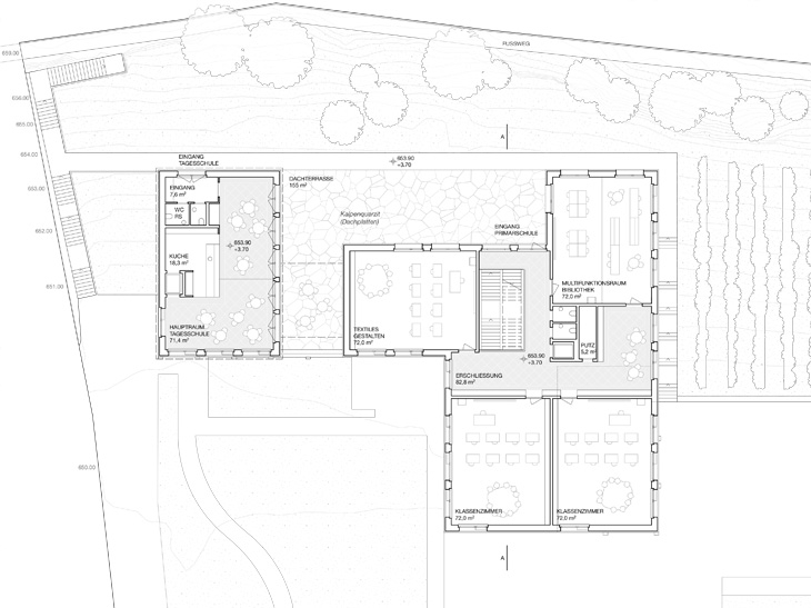
Concours de projet pour une école avec garderie à Lalden, Valais.
Concours d'architecture, 2022. Concours de projet pour une école avec garderie à Lalden, Valais.
Concours d'architecture, 2022. Concours de projet pour une école avec garderie à Lalden, Valais.
Concours d'architecture, 2022. Concours de projet pour une école avec garderie à Lalden, Valais.
Concours d'architecture, 2022.

Concours de projet pour une école avec garderie à Lalden, Valais.
Concours d'architecture, 2022.


Description
Le périmètre d’implantation de l’école se situe au pied du versant sud de la Vallée du Rhône. L’interface entre montagne et vallée est le point de départ de ce projet.
La nouvelle école remplace l’ancien bâtiment voué à la démolition. Le soubassement minéral supporte deux volumes en bois. Le socle accueille l'entrée de l'école, avec son préau couvert, ainsi que les espaces de la garderie. Les salles de classe sont distribuées dans les étages supérieurs. La cantine de l’école occupe un volume indépendant et profite de la terrasse avec un vue sur le versant montagneux opposé.


Lalden, Valais

Quand
2022 - concours

Photos
Nazario Branca, Arthur Billotte